【恒盛装饰】鲁班工艺——水电专题篇



 案例简介 Case description

 设计师:郭倩倩

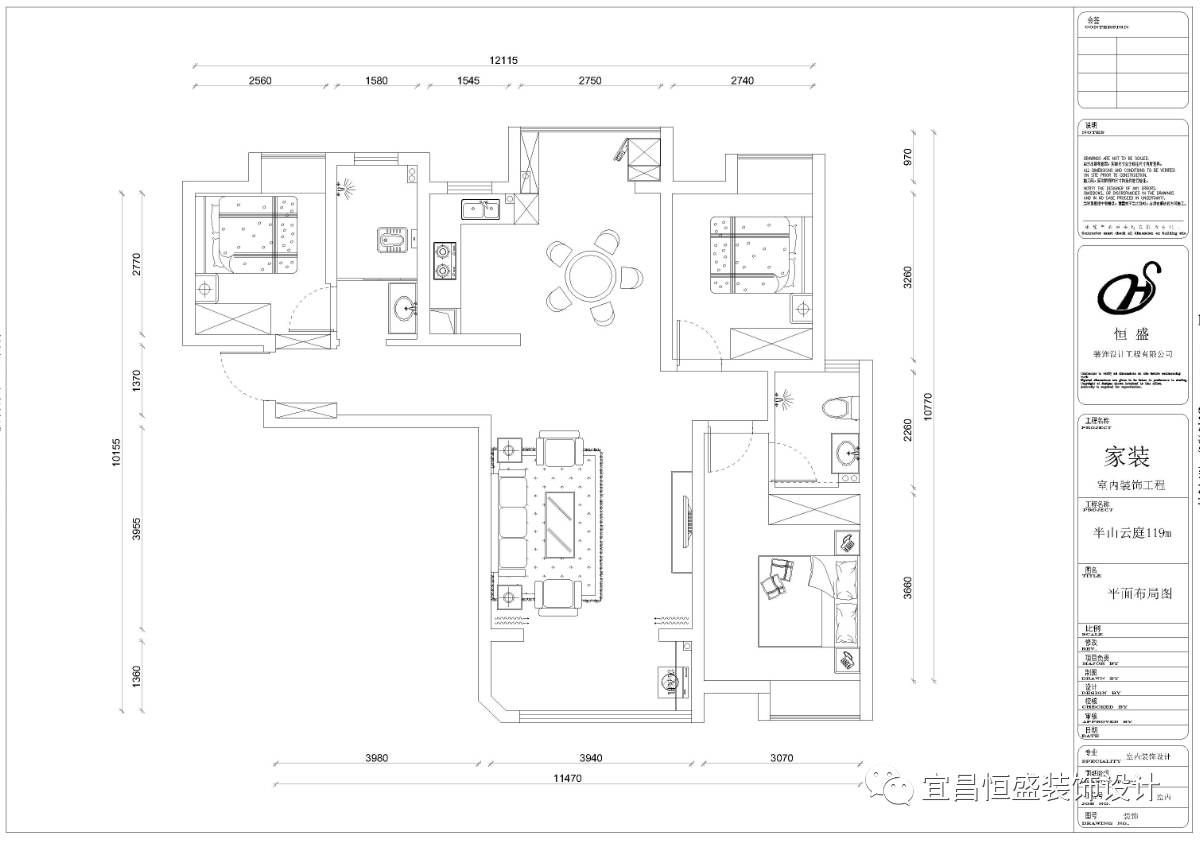
 楼盘:半山云庭3-1-2101

 风格:简欧

 建筑面积:119m²

 主要用材:大理石、墙布、红龙玉、木地板


郭倩倩

主任及设计师


2010年毕业于湖北三峡大学室内设计专业;

2011年加入宜昌广美装饰设计公司;

2013年任宜昌簡格装饰家装设计小组主管;

2014年调任簡格装饰工装部参与清江公司招投标业务及预算;

2016年聘请为恒盛装饰设计公司并任主任设计师;现任设计部主管兼首席设计师;每月签单冠军。

设计理念

结构的美来自视觉的张力与比例,呈现不加装饰的本质。简洁中体现不凡,高雅中彰显品质,追求时尚生活空间。以人为本,达到人与人的和谐,人与自然的和谐,人与社会的共融。让所有设计语言都奏出和谐的音符。

案例分析

小区:半山云庭

主题:华丽的冒险


设计说明:本案户型结构,采光以及通风都是比较好的,所以没有进行大的改动,唯独厨房的利用空间比较小,所以在和客户沟通后,我们选择了开放式厨房,以此来拓宽厨房的视觉以及使用空间。本案之所以命名华丽的冒险,因为在背景墙的选材以及垭口的设计上,我们大胆的运用了大理石大面积的铺贴造型,橱柜为白色系,局部用蓝色点缀,从窗帘到沙发以及餐桌都是比较沉稳的色调,与客户的气质相符。整体风格有欧式的华美,并带有现代的时尚。

鲁班工艺

——————水电竣工验收标准

安全整齐的水电布局

强弱电分明,整齐有序,每隔50-80厘米,用专用卡子固定,更安全!强电和弱电交界处用锡纸包好,避免发生连电。

冷热水管间隔,热水管用保温管套管,再包锡纸,保温节能!